8195 S Newport Way Centennial, CO 80112

5 Bedroom/3 Bath 3,104 SQ FT 14,680 SQ FT LOT

CURRENTLY UNDER CONTRACT MLS# 7394686

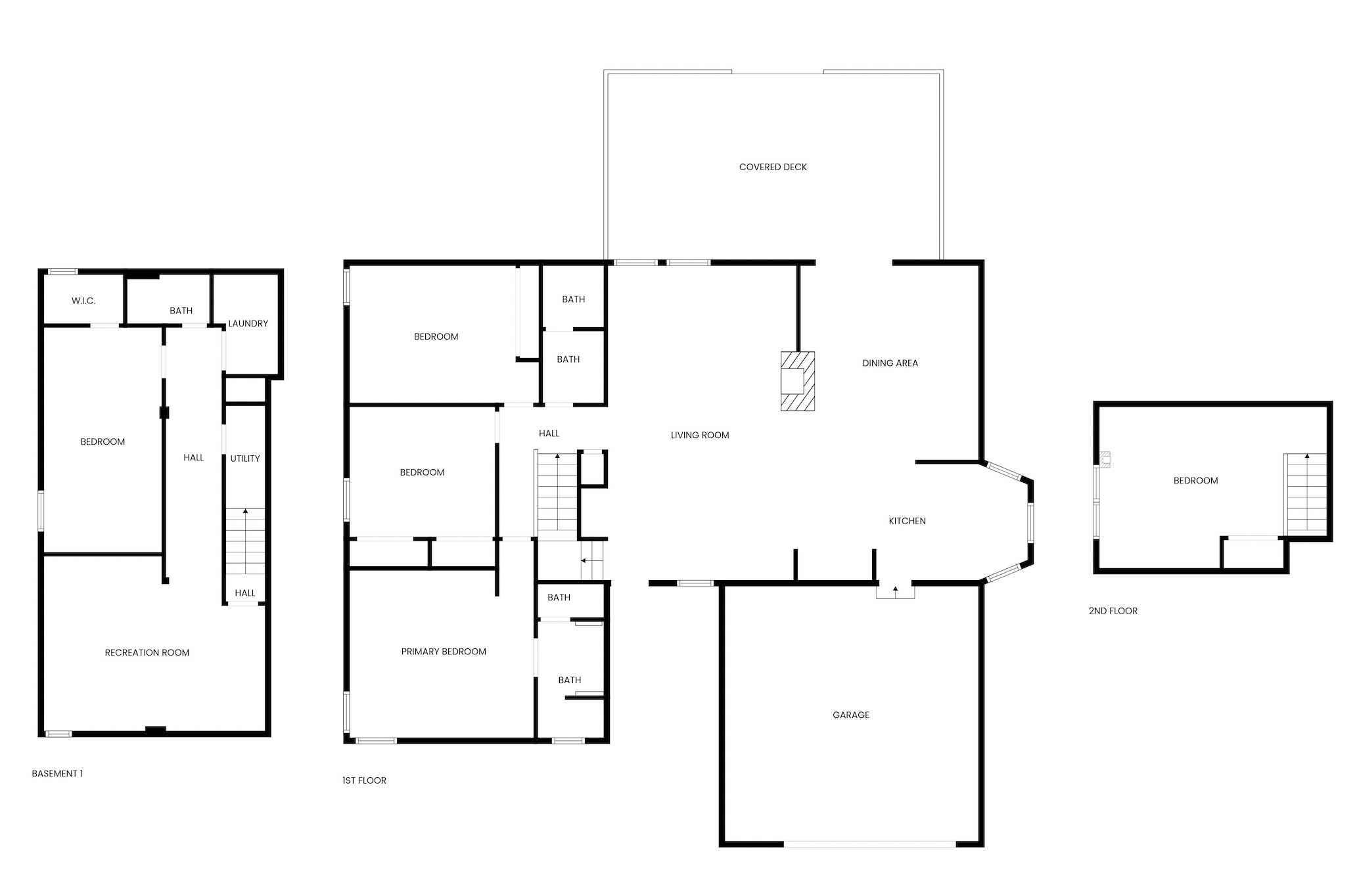
One-of-a-kind property in the desirable Foxridge neighborhood and the high-ranking Cherry Creek School District. This five-bedroom, three-bath updated home and oversized 14,680 sq ft lot has all the space you need both inside and out. The main level features an open living room with vaulted ceilings, and shares a double-sided fireplace with the dining area, providing a classic focal point that enhances both spaces. The kitchen includes newly refinished wood floors, stone countertops, a built-in refrigerator and a large center island with plenty of storage.

Newer carpet in the living area continues in the three main-level bedrooms, including a primary with remodeled en suite and custom storage. Upstairs is a single, private bedroom with laminate wood flooring for a modern feel. The fully finished basement has an additional living area that would make a perfect media room, a spacious fifth bedroom with conforming egress window and adjacent 3/4 bath, as well as separate laundry room and utility closet. The attached two-car garage and large driveway with access to the backyard has room for all kinds of vehicles.

Rest assured with exterior improvements such as Hardie® cement siding and brand NEW ROOF installed Feb 2026. The backyard truly sets this home apart with over 1/3 acre to spread out. A shaded deck is accessible though French doors, leading to the open yard with mature trees and a separate, detached 670 sq ft “building out back” that can be used as an additional garage, workshop or studio. This unique space with both 220V electrical power and heat is a rare find in this kind of residential area.

Conveniently located near I-25 and E470, the house is remarkably close to shopping, dining, and entertainment while still adhering to the quiet street and peaceful neighborhood lifestyle. The voluntary Foxridge Improvement Association has homeowner benefits and partnerships with the nearby Foxridge Clubhouse, South Suburban Parks and Recreation District and more for direct access to the local community.

$825,000

Offering Buyer Broker Compensation with Acceptable Offer

Buyer’s brokerage firm compensation is negotiable and provided on completion of a successful transaction. Terms and offer must be acceptable to the Seller. The amount of buyer brokerage firm compensation to be paid is subject to change at Seller discretion. Please contact Seller’s Agent for more details.